Her kan du laste ned plantegningen:
Her er de fem nye Hageleilighetene på Kvitodden
Leilighet 1A
Lys og trivelig endeleilighet med tre soverom. Her får du en luksuriøs løsning for hovedsoverommet, med privat bad og walk-in-closet. Leiligheten har i tillegg ett ekstra bad, innvendig bod pluss utvendig sportsbod, og en stor, åpen stue-/kjøkkenløsning.
Salgspris: 6 890 000 kr
BRA-i: 111 kvm
Soverom: 3
Fyll ut skjemaet for å melde forkjøpsrett
Frist: Onsdag 25. mars kl. 12.
Leilighet 1B
Kjekk leilighet med to soverom og to bad. Det ene badet er tilknyttet hovedsoverommet. Leiligheten har også en romslig éntre, innvendig bod pluss utvendig sportsbod og en stor, åpen stue-/kjøkkenløsning.
Salgspris: 6 890 000 kr
BRA-i: 112,5 kvm
Soverom: 2
Fyll ut skjemaet for å melde forkjøpsrett
Frist: Onsdag 25. mars kl. 12
Leilighet 1C
Koselig leilighet med ett soverom og ett bad. Selv om det er den minste hageleiligheten, får du like god lagringsplass som i de andre, med både innvendig bod og sportsbod i tilknytning til inngangspartiet. Den store terrassen like utenfor stua er delvis overbygget - her finnner du både skygge og ly.
Salgspris: 4 290 000 kr
BRA-i: 61 kvm
Soverom: 1
Fyll ut skjemaet for å melde forkjøpsrett
Frist: Onsdag 25. mars kl. 12
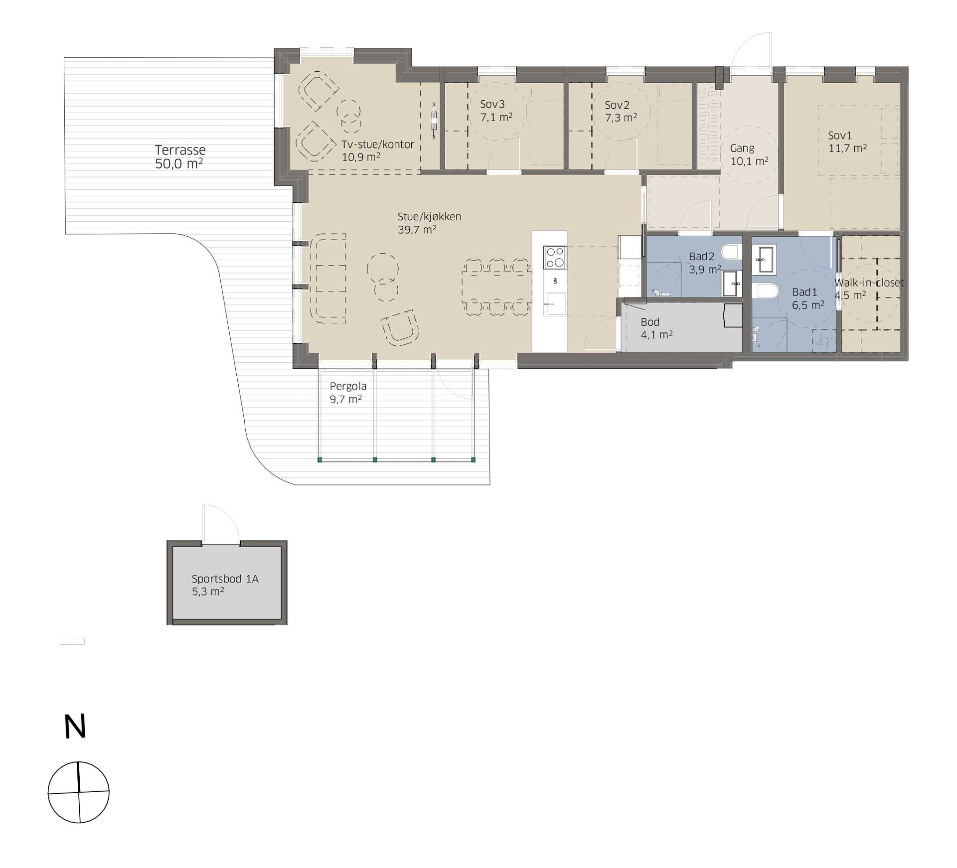
Leilighet 1D
Romslig leilighet med to soverom, to bad og separat TV-stue/kontor. Her får du en stor og åpen stue-/kjøkkenløsning hvor du, om ønskelig, kan skille ut et tredje soverom. Leiligheten har også to boder, og to terrasser. På den største terrassen får du en koselig pergola - en perfekt ramme for hyggelige utekvelder.
Salgspris: 6 990 000 kr
BRA-i: 119,9 kvm
Soverom: 2
Fyll ut skjemaet for å melde forkjøpsrett
Frist: Onsdag 25. mars kl. 12
Leilighet 1E
Sjelden endeleilighet med ett soverom og ett bad. Fra stua kommer du ut til et herlig, skjermet uteområde, hvor du får en stor terrasse som er delvis åpen, delvis overbygd og delvis med pergola. Leiligheten har både innvendig bod og utvendig sportsbod.
Salgspris: 4 390 000 kr
BRA-i: 69 kvm
Soverom: 1
Fyll ut skjemaet for å melde forkjøpsrett
Frist: Onsdag 25. mars kl. 12











